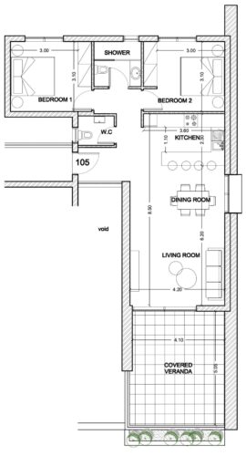
This two-bedroom penthouse is a prime investment opportunity for high rental income in Paphos, Cyprus. With rising demand for spacious, modern apartments, penthouses attract both holidaymakers and long-term tenants seeking luxury, privacy, and stunning sea views. Offering premium comfort and strong year-round demand, this property ensures excellent occupancy rates and solid returns.












